Modular Tiny Home
Mae
Tiny Home on Foundation

Sleeps 2

340 sq.ft.

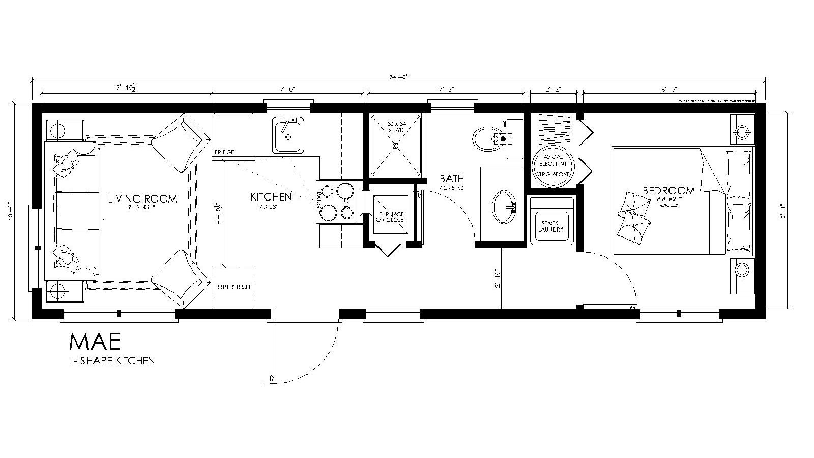
34' l. x 10' w.

Main Floor Bed
Mae Foundation Series
Meet Mae – The Perfect One-Bedroom Tiny Home
Mae is a beautifully designed 340 sq. ft. tiny home that blends comfort, functionality, and style. This thoughtfully crafted layout features a cozy one-bedroom, a full bathroom, and a functional L-shaped kitchen with ample storage. Vaulted ceilings and strategically placed windows create an airy, light-filled space while maintaining privacy. Built for all climates, Mae offers flexible heating options, including a heat pump system or a forced air furnace with in-floor heating for ultimate comfort. Plus, this design is fully customizable to match your aesthetic and lifestyle needs. Compact yet spacious, Mae is the perfect tiny home retreat.



I have been following Teacup for a number of years and have been consistently impressed by the adjustments Teacup makes to their homes to make them better and better. Teacup has a strong client following and the reviews and recommendations from previous clients are always positive. Teacup is located in Alberta which means they understand the winters and the winds that we get and have built their homes with the proper installation and function which is such a comfort. I also love that the team seems to really enjoy each other’s company and what they get to do every day!
Tina | Florence Foundation Series | Alberta, Canada
Join our email list!
Subscribe to get our latest Teacup news & weekly blog by email!